Description
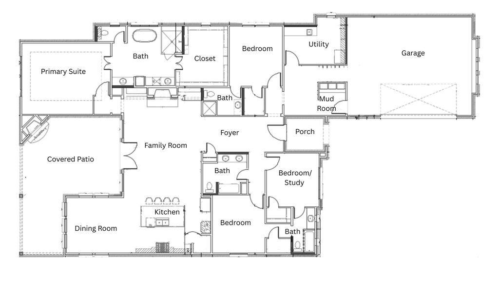
Ten acres to spread out, build big, and live your way. This modern custom home offers the peace, privacy, and freedom of true country living—within easy reach of Fort Worth first, then Weatherford, and located in Poolville ISD.Thoughtfully designed for both comfort and flexibility, the home features 3 bedrooms, a private study, and a 3-car garage all set on 10 beautiful acres of rolling countryside with mature trees and open views. Enjoy quiet surroundings, room to expand, and the kind of space that’s becoming increasingly hard to find.Inside, an open-concept layout highlights a modern kitchen with a large quartz island, custom cabinetry, and sleek finishes, flowing seamlessly into spacious living and dining areas. High ceilings and abundant natural light create an inviting atmosphere ideal for both relaxed living and entertaining.The primary suite offers a private retreat with a spa-style bath, walk-in shower, soaking tub, and generous closet space. Three additional bedrooms plus a dedicated study provide flexibility for guests, multi-generational living, hobbies, or a home office.Step outside to a large covered patio overlooking your 10 acres, with room to add a pool, shop, barn, or additional structures, or simply enjoy the peace and privacy of wide-open land. Additional tracts are available, allowing buyers the opportunity to purchase more land and create a larger private estate.This home captures the best of modern country living—contemporary comfort, expansive land, and long-term flexibility—all within Poolville ISD.Coming May 2026
-
3BEDS
-
10.01ACRES
-
3BATHS
-
01/2 BATHS
-
2,785SQFT
-
$293$/SQFT
School Information
Description
Ten acres to spread out, build big, and live your way. This modern custom home offers the peace, privacy, and freedom of true country living—within easy reach of Fort Worth first, then Weatherford, and located in Poolville ISD.Thoughtfully designed for both comfort and flexibility, the home features 3 bedrooms, a private study, and a 3-car garage all set on 10 beautiful acres of rolling countryside with mature trees and open views. Enjoy quiet surroundings, room to expand, and the kind of space that’s becoming increasingly hard to find.Inside, an open-concept layout highlights a modern kitchen with a large quartz island, custom cabinetry, and sleek finishes, flowing seamlessly into spacious living and dining areas. High ceilings and abundant natural light create an inviting atmosphere ideal for both relaxed living and entertaining.The primary suite offers a private retreat with a spa-style bath, walk-in shower, soaking tub, and generous closet space. Three additional bedrooms plus a dedicated study provide flexibility for guests, multi-generational living, hobbies, or a home office.Step outside to a large covered patio overlooking your 10 acres, with room to add a pool, shop, barn, or additional structures, or simply enjoy the peace and privacy of wide-open land. Additional tracts are available, allowing buyers the opportunity to purchase more land and create a larger private estate.This home captures the best of modern country living—contemporary comfort, expansive land, and long-term flexibility—all within Poolville ISD.Coming May 2026
© 2026 North Texas Real Estate Information Systems. All rights reserved. IDX information is provided exclusively for consumers' personal, non-commercial use and may not be used for any purpose other than to identify prospective properties consumers may be interested in purchasing. Information is deemed reliable but is not guaranteed accurate by the MLS or Berkshire Hathaway HomeServices Ally Real Estate. The data relating to real estate for sale or lease on this web site comes in part from NTREIS. Real estate listings held by brokerage firms other than Berkshire Hathaway HomeServices Ally Real Estate are marked with the NTREIS logo or an abbreviated logo and detailed information about them includes the name of the listing broker. Data last updated 2026-02-08T23:41:29.757.

Listing information © 2026 North Texas Real Estate Information System.