Description
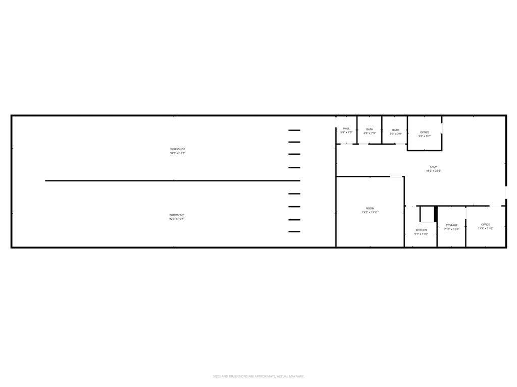
Prime commercial opportunity off 1187 and outside city limits! This 6,000 sq. ft. building offers versatile space with 2 offices, 2 bathrooms, a large training room, and a break room. The back 4,000 sq. ft. was previously used as a gun range but can be repurposed to fit your business needs. Ample parking is available at the front, side, and back of the building, with additional room to expand if desired.Located within 10 minutes of Burleson, Mansfield, Fort Worth, and Alvarado, this property provides unbeatable accessibility in a high-demand area. Commercial buildings in this location are hard to find"dont miss your chance! Hurry and get your offer in NOW! LOCATION, LOCATION, LOCATION!!!
-
0BEDS
-
1.78ACRES
-
0BATHS
-
01/2 BATHS
School Ratings & Info
Description
Prime commercial opportunity off 1187 and outside city limits! This 6,000 sq. ft. building offers versatile space with 2 offices, 2 bathrooms, a large training room, and a break room. The back 4,000 sq. ft. was previously used as a gun range but can be repurposed to fit your business needs. Ample parking is available at the front, side, and back of the building, with additional room to expand if desired.Located within 10 minutes of Burleson, Mansfield, Fort Worth, and Alvarado, this property provides unbeatable accessibility in a high-demand area. Commercial buildings in this location are hard to find"dont miss your chance! Hurry and get your offer in NOW! LOCATION, LOCATION, LOCATION!!!
© 2025 North Texas Real Estate Information Systems. All rights reserved. IDX information is provided exclusively for consumers' personal, non-commercial use and may not be used for any purpose other than to identify prospective properties consumers may be interested in purchasing. Information is deemed reliable but is not guaranteed accurate by the MLS or Berkshire Hathaway HomeServices Ally Real Estate. The data relating to real estate for sale or lease on this web site comes in part from NTREIS. Real estate listings held by brokerage firms other than Berkshire Hathaway HomeServices Ally Real Estate are marked with the NTREIS logo or an abbreviated logo and detailed information about them includes the name of the listing broker. Data last updated 2025-11-14T23:43:29.263.

Listing information © 2025 North Texas Real Estate Information System.