Description
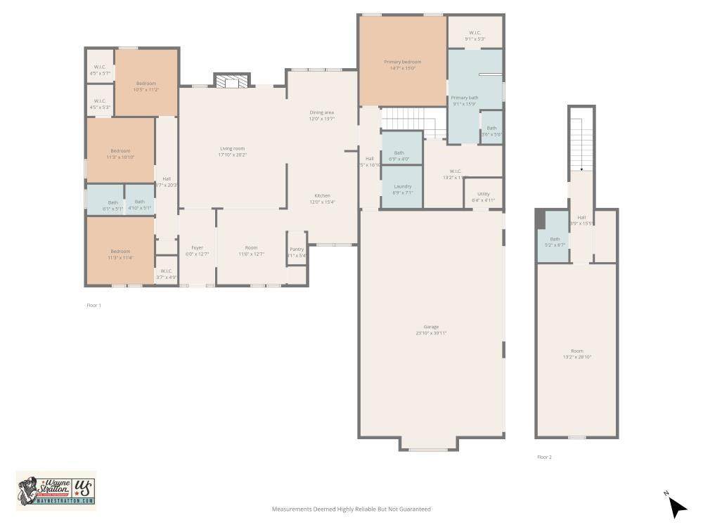
Motivated Sellers! Better than new 2020 Custom Built light and bright modern farmhouse vibe 4 bedroom plus a huge bonus room that could easily be a 5th bedroom, 3.5 bath luxury home with designer touches everywhere you look. No updating needed here! All 4 bedrooms are on the main level with the bonus room and one of the full baths upstairs offering the ultimate privacy for a guest or in law space. Perfectly situated on a half acre lot that backs to heavily treed space offering privacy and a beautiful backdrop for the backyard pool oasis. Welcoming front porch trimmed out with wood plank finishes and ceiling fans. Upon entry you will immediately notice the decorative ceiling treatment and stone feature wall surrounding the gas fireplace, giving the living space an extra cozy feel. Formal dining space would also make a great office or flex area if formal isn't your thing. Kitchen features white shaker cabinets and upgraded granite counters offering everything the chef in your home desires. Storage galore including built in spice racks, new-never been used wifi enabled oven with air fry option, built in microwave, 5 burner gas cooking and a generous pantry. Primary bedroom ensuite features double vanity, separate shower, soaker tub and 2 walk in closets! HUGE custom closet with a bonus under the stairs storage space and on the other side of the bathroom, another secondary closet too. Large covered outdoor patio overlooks a custom remote controlled salt water pool and attached 7 ft deep spa that backs up to a heavily treed area where a small creek runs through. Entire backyard oasis is fenced and was recently professionally landscaped to address some cosmetic only drainage issues. Oversized 3-Car garage for just about anything you need-see floorplan. Located outside of the city limits so no city taxes either!
-
4BEDS
-
0.5ACRES
-
3BATHS
-
11/2 BATHS
-
3,052SQFT
-
$236$/SQFT
School Information
Description
Motivated Sellers! Better than new 2020 Custom Built light and bright modern farmhouse vibe 4 bedroom plus a huge bonus room that could easily be a 5th bedroom, 3.5 bath luxury home with designer touches everywhere you look. No updating needed here! All 4 bedrooms are on the main level with the bonus room and one of the full baths upstairs offering the ultimate privacy for a guest or in law space. Perfectly situated on a half acre lot that backs to heavily treed space offering privacy and a beautiful backdrop for the backyard pool oasis. Welcoming front porch trimmed out with wood plank finishes and ceiling fans. Upon entry you will immediately notice the decorative ceiling treatment and stone feature wall surrounding the gas fireplace, giving the living space an extra cozy feel. Formal dining space would also make a great office or flex area if formal isn't your thing. Kitchen features white shaker cabinets and upgraded granite counters offering everything the chef in your home desires. Storage galore including built in spice racks, new-never been used wifi enabled oven with air fry option, built in microwave, 5 burner gas cooking and a generous pantry. Primary bedroom ensuite features double vanity, separate shower, soaker tub and 2 walk in closets! HUGE custom closet with a bonus under the stairs storage space and on the other side of the bathroom, another secondary closet too. Large covered outdoor patio overlooks a custom remote controlled salt water pool and attached 7 ft deep spa that backs up to a heavily treed area where a small creek runs through. Entire backyard oasis is fenced and was recently professionally landscaped to address some cosmetic only drainage issues. Oversized 3-Car garage for just about anything you need-see floorplan. Located outside of the city limits so no city taxes either!
Related Properties
© 2026 North Texas Real Estate Information Systems. All rights reserved. IDX information is provided exclusively for consumers' personal, non-commercial use and may not be used for any purpose other than to identify prospective properties consumers may be interested in purchasing. Information is deemed reliable but is not guaranteed accurate by the MLS or Berkshire Hathaway HomeServices Ally Real Estate. The data relating to real estate for sale or lease on this web site comes in part from NTREIS. Real estate listings held by brokerage firms other than Berkshire Hathaway HomeServices Ally Real Estate are marked with the NTREIS logo or an abbreviated logo and detailed information about them includes the name of the listing broker. Data last updated 2026-03-07T23:42:21.863.

Listing information © 2026 North Texas Real Estate Information System.