Description
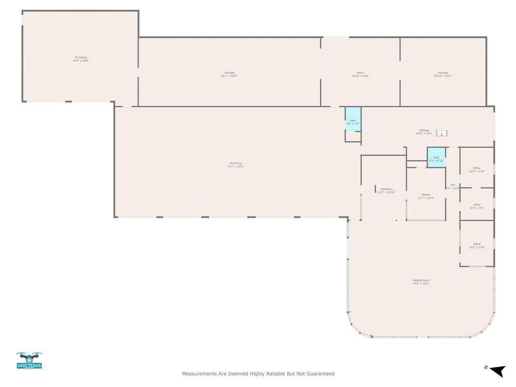
FOR SALE Successful Tire & Service Business for Sale Prime Hwy Corner Location, Henderson TX Located on the corner of a main highway and busy cross street in Henderson, this established tire retail and service center offers excellent visibility,heavy traffic counts, and a strong reputation in the community. The business combines retail tire sales, full tire service, andlight mechanical repair, making it a one-stop shop for local drivers and fleet customers. Property Overview Approx. 51,000 plus Sq. Ft. Total Main Building Reception Area Large welcoming space for customer check in and waiting. Offices 3, Privateoffices for management, sales, and administrative use. Bathrooms 3, Conveniently located throughout the facility for staff andcustomers. Storage Rooms 3, Secure and organized rooms for tools, equipment, and parts. Service Shop 6 Bays Fullyequipped for tire changes, balancing, rotations, alignments, and small mechanical services. High Ceilings & Wide Access Designed to accommodate cars, light trucks, and commercial vehicles. Warehouse Facility Huge Storage Capacity Perfect forlarge tire inventory, bulk parts, and future business growth. Connected to Main Building Joined by a roofed open area for easy loading unloading while protected from weather. Additional Buildings Total of 3 Flexible use for storage, rental, or expansioninto related services.
-
0BEDS
-
1.42ACRES
-
0BATHS
-
01/2 BATHS
School Ratings & Info
Description
FOR SALE Successful Tire & Service Business for Sale Prime Hwy Corner Location, Henderson TX Located on the corner of a main highway and busy cross street in Henderson, this established tire retail and service center offers excellent visibility,heavy traffic counts, and a strong reputation in the community. The business combines retail tire sales, full tire service, andlight mechanical repair, making it a one-stop shop for local drivers and fleet customers. Property Overview Approx. 51,000 plus Sq. Ft. Total Main Building Reception Area Large welcoming space for customer check in and waiting. Offices 3, Privateoffices for management, sales, and administrative use. Bathrooms 3, Conveniently located throughout the facility for staff andcustomers. Storage Rooms 3, Secure and organized rooms for tools, equipment, and parts. Service Shop 6 Bays Fullyequipped for tire changes, balancing, rotations, alignments, and small mechanical services. High Ceilings & Wide Access Designed to accommodate cars, light trucks, and commercial vehicles. Warehouse Facility Huge Storage Capacity Perfect forlarge tire inventory, bulk parts, and future business growth. Connected to Main Building Joined by a roofed open area for easy loading unloading while protected from weather. Additional Buildings Total of 3 Flexible use for storage, rental, or expansioninto related services.
© 2025 North Texas Real Estate Information Systems. All rights reserved. IDX information is provided exclusively for consumers' personal, non-commercial use and may not be used for any purpose other than to identify prospective properties consumers may be interested in purchasing. Information is deemed reliable but is not guaranteed accurate by the MLS or Berkshire Hathaway HomeServices Ally Real Estate. The data relating to real estate for sale or lease on this web site comes in part from NTREIS. Real estate listings held by brokerage firms other than Berkshire Hathaway HomeServices Ally Real Estate are marked with the NTREIS logo or an abbreviated logo and detailed information about them includes the name of the listing broker. Data last updated 2025-11-10T14:45:44.31.

Listing information © 2025 North Texas Real Estate Information System.